3 Bedroom End of Terrace House, Barlow Street, Stacksteads, Rossendale
SHARE
Property Features
- STUNNING 3 BED STONE BUILT TERRACED HOME
- LIGHT & BRIGHT WITH HIGH CEILINGS
- RECENTLY REFURBISHED REQUIRING THE FINIAL TOUCHES
- LOWER GROUND FLOOR OFFERS GREAT POTENTIAL
- OFF-ROAD PARKING & GARDEN SPACE
- BRAND NEW MODERN KITCHEN WITH BUILT IN OVEN AND HOB
- COUNCIL TAX BAND A / LEASEHOLD
Description
This 3 bedroom end terraced home with 2 reception rooms, spread over 3 floors, with 1 bathroom is in stunning condition. This property is ideally suitable for first time buyers / investors and is sold with, no chain.
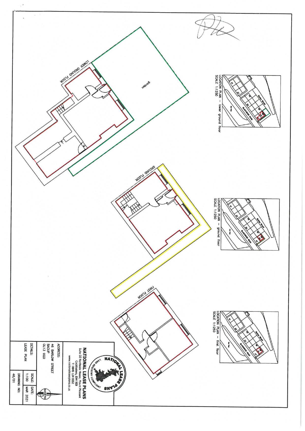
LOWER GROUND FLOOR
Reception Room – 4.68m x 4.25m (15.4ft x 13.9ft)
A spacious, light, and versatile reception area with high ceilings, offering excellent potential as a second lounge, cinema room, or games space. This level was previously intended to be used as a self-contained annex or arts studio, making it ideal for multi-generational living or creative work. Ample natural light and direct access to the driveway/garden area.
Bedroom 3 – 3.12m x 1.92m (10.2ft x 6.3ft)
A well-proportioned bedroom ideal for guests, teenagers, or as a quiet home office. Pleasant outlook and conveniently located near the lower-floor WC.
Utility Room – 1.47m x 2.25m (4.8ft x 7.4ft)
Fitted with work surfaces, plumbing access, and useful storage. Offers practical separation from the main living areas, with potential to convert or extend into bath/utility facilities if required.
Storage / Home Office – 4.74m x 1.75m (15.6ft x 5.7ft)
A flexible space suitable for use as a home study, hobby room, or laundry room perfect for keeping household essentials neatly organised.
WC
Fitted with a low-level WC and wash basin for convenience on the lower level.
GROUND FLOOR
Lounge – 4.96m x 4.13m (16.3ft x 13.5ft)
A bright and welcoming main living room with generous proportions, feature fireplace, and a large window flooding the space with natural light ideal for relaxing or entertaining.
Kitchen – 3.19m x 2.14m (10.5ft x 7ft)
A modern fitted kitchen offering a range of wall and base units, complementary worktops, and integrated cooking appliances. Includes plumbing for a washing machine and/or dryer. Window overlooking the woodland area with access to the lower floor.
FIRST FLOOR
Bedroom 1 – 4.22m x 3.10m (13.8ft x 10.2ft)
A spacious double bedroom with large built-in cupboard and ample room for additional wardrobes and furniture. Positioned to the front with pleasant views.
Bedroom 2 – 3.35m x 2.85m (11ft x 9.4ft)
Another good-sized double bedroom ideal for family or guests, finished in neutral décor.
Family Bathroom – 1.95m x 2.13m (6.4ft x 7ft)
A well-appointed bathroom comprising a panel bath with shower over, wash hand basin, and WC. Finished with tiled walls and flooring for easy maintenance.
Landing
Features a large built-in cupboard providing excellent additional storage.
EXTERNALLY
Please note: Side access is via a Right of Way passage which connects to the garden/driveway; please refer to the title plan for further details.
TENURE
Leasehold
COUNCIL TAX
Council Tax Band A, Rossendale (2025/26)
EPC
EPC C (expires 16 Mar 2030) — issued 16 Mar 2020
BROADBAND
Broadband: Gigabit ~0% · Ultrafast ~0% · Superfast ~100%
TYPICAL FLOOR AREA
730 square feet
THE AREA
Stacksteads is a small, historic village located in the town of Bacup, within the Rossendale Valley in Lancashire, England. Nestled among rolling hills and scenic moorland, it has a strong industrial heritage, particularly in textile manufacturing and coal mining, which shaped much of its development during the 19th and early 20th centuries. The area is characterised by traditional stone terraced housing, a close-knit community feel, and a backdrop of natural beauty that attracts walkers, cyclists, and nature lovers.
The River Irwell runs through Stacksteads, adding to its rural charm while also serving as a reminder of the area's industrial past. Today, Stacksteads is a quiet residential area that retains its village character while benefiting from proximity to larger towns like Rawtenstall and Burnley. Local amenities include primary schools, parks such as Moorlands Park, and various community organisations that help maintain a strong sense of local identity. The nearby Lee Quarry and Cragg Quarry mountain bike trails draw outdoor sports enthusiasts to the region, while ongoing efforts by community groups like the Stacksteads Countryside Park Group (SCPG) continue to enhance the environment and community spaces. Despite economic challenges typical of post-industrial areas, Stacksteads remains a resilient and welcoming place.
PLEASE NOTE
Coppenwall Estate Agents aims to ensure property details are accurate and clear, in line with the Consumer Protection from Unfair Trading Regulations 2008, The Property Ombudsman Code of Practice, and Propertymark standards. All descriptions, photos, floor plans and measurements are for guidance only and do not form part of a contract. Services, fixtures and fittings are provided by the seller/landlord and have not been tested. Prospective buyers and tenants should verify any important details (including measurements, condition, utilities, tenure, planning and boundaries) through their own checks, inspections, and legal advice before making any commitment. Coppenwall Estate Agents is a member of The Property Ombudsman and Propertymark, and is covered by Client Money Protection.
In line with HMRC Anti-Money Laundering Regulations, all successful buyers are required to complete identity and proof-of-funds checks before a sale can proceed. These checks are conducted by our compliance partner iamproperty.com on Coppenwall’s behalf. A non-refundable fee of £30 (inc. VAT) is payable directly to iamproperty.com per offer submitted. This covers the cost of data verification, any necessary manual reviews, and ongoing compliance monitoring. The checks must be fully completed and verified before a Memorandum of Sale can be issued.
TENURE
Leasehold
COUNCIL TAX
Band: A
PLEASE NOTE
All measurements are approximate to the nearest 0.1m and for guidance only and they should not be relied upon for the fitting of carpets or the placement of furniture. No checks have been made on any fixtures and fittings or services where connected (water, electricity, gas, drainage, heating appliances or any other electrical or mechanical equipment in this property).
Learn more about Stacksteads
Thinking of moving to Stacksteads? Discover everything about the area, schools, transport links, and local amenities.
More about StacksteadsMORTGAGE CALCULATOR
STAMP DUTY CALCULATOR
RENTAL YIELD
Selling a Property?
Get a free property valuation from Coppenwall Estate Agents.
I Want an Instant Valuation »


















































































